Sign up to get new listings emailed daily! JOIN SIGN IN
Vinnie Stulic
REALTOR®
GoogleBusiness Icon 
Refine Search

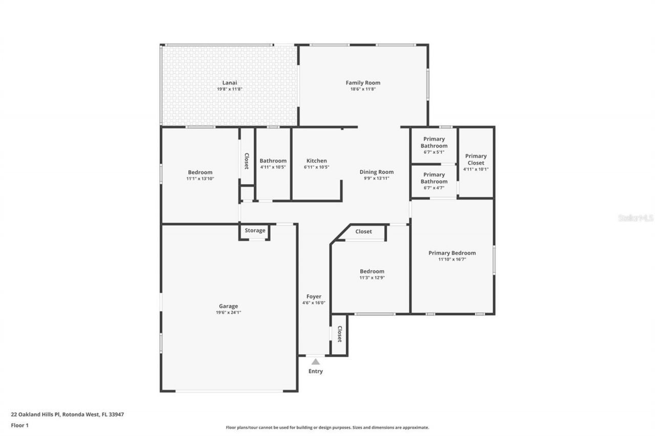
22 Oakland Hills Court , Rotonda West, FL 33947

$234,999
  • 22 Oakland Hills Court , Rotonda West, FL 33947 Main Photo

50 Total Photos [Click to View All]

Active
BEDS3 BATHS2 full SQUARE FEET1,450 MLS#C7522427
STATUSActive PROPERTY TYPEResidential - Single Family SUBDIVISIONROTONDA WEST OAKLAND HILLS

Property Description

Enjoy peaceful mornings and beautiful fairway views in this well-maintained Florida home overlooking the Oakland Hills Golf Course, perfectly positioned along the 1st hole. This prime golf course home offers wide green views and a calm setting you will love coming home to every day. The chain-link fenced backyard provides both privacy and function, complete with two man gates and oversized access. It's perfect for pets, outdoor projects, or extra storage needs. There is plenty of room to create the outdoor space you've always wanted while enjoying open golf course views right behind you. Inside, you'll find new laminate flooring throughout the entire home, giving every room a fresh and modern look. The interior walls have been recently retextured and freshly painted, creating a clean and bright feel from the moment you walk in. Most rooms feature updated light fixtures and ceiling fans, adding style and comfort throughout the home. The primary bedroom stands out with a gorgeous barn door that opens to a thoughtfully designed split bathroom layout. The vanity and sink area offer great function and charm. Both bathrooms have been upgraded with new toilets and shower heads, adding value and peace of mind. The kitchen and bathroom remodels are ready for your inspiration, giving you the chance to design spaces that match your personal taste and style. A home warranty for the new buyer is included, offering extra confidence. There is also a comfortable enclosed area that is perfect for laundry, hobbies, or additional workspace. Major improvements bring lasting value to this Florida golf course property. The roof was replaced in 2022, overhead plumbing was re-piped in 2022, and the lanai was partially rescreened in 2022. Hurricane shutters and a hurricane impact front door installed in 2025 add strong storm protection. Located just 20 minutes from Boca Grande, with easy access to shopping, dining, and Englewood Beach, this move-in ready home combines golf course views, functional outdoor space, and key system upgrades in one great location. Don't miss this opportunity to relax, entertain, and enjoy the view - this is Florida living done right. Call today to schedule a showing of this great home - it's ready and waiting for you!

22 Oakland Hills Court | MLS# C7522427

This single family home located at 22 Oakland Hills Court , Rotonda West, FL 33947 is currently listed for sale with an asking price of $234,999. This property was built in 1981 and has 3 bedrooms and 2 full baths with 1450 sq. ft. Oakland Hills Court is located in the ROTONDA WEST OAKLAND HILLS subdivision. Search ROTONDA WEST OAKLAND HILLS real estate on vstulic.floridaexecutiverealty.com today.

Property Features

Property Type: Residential - Single Family
Cooling: Central Air, Mini-Split Unit(s)
Fenced: Yes
Garage: 2 car attached
Heating: Central
Home Style: Florida
Lot Size: 0.22 Acres
Roof Type: Shingle
Stories: 1.0
Taxes: $3,031
Year Built: 1981

Amenities

Ceiling Fans(s)
Thermostat
Window Treatments
Hurricane Shutters
Lighting
Other
Rain Gutters
Sliding Doors

Feature Descriptions

Accessibility Features: Accessible Hallway(s), Grip-Accessible Features
Appliances: Dishwasher, Disposal, Dryer, Range, Range Hood, Refrigerator, Washer
Association Amenities: Park
Community Features: Clubhouse, Deed Restrictions, Golf
Days on Site: 21
Directions: US-41 N, L-on FL-776, L-on Oceanspray Blvd, L-on Sunnybrook Blvd, R-on Rotonda Cir, L-on Oakland Hills Ct. Home on left side. FYI there is a similar address in RW, this home is CT and not PL.
Disaster Mitigation: Hurricane Shutters/Windows
Exterior: Block, Stucco
Fencing: Chain Link, Vinyl
Flood Zone Code: AE
Flooring: Laminate, Tile
Foundation: Slab
Garage Dimensions: 25x21
HOA Fee: 190/ Annually
HOA Y/N: Yes
Home Warranty Y/N: Yes
Listing Terms: Cash, Conventional, FHA, VA Loan
Lot: Greenbelt, In County, Landscaped, On Golf Course, Paved
Lot Dimensions: 0.22
Other Equipment: Irrigation Equipment
Ownership: Fee Simple
Parking: Driveway, Guest
Parking Notes: Driveway, Guest
Patio/Porch: Covered, Screened
Pets Allowed: Yes
Property Attached Y/N: No
Property Sub-Type: Single Family Residence
Sewer: Public Sewer
Showing Instructions: Supra Lock Box, Appointment Only, Contact Call Center, See Remarks, ShowingTime
Special Sale Provisions: None
Utilities: Electricity Connected, Public, Sewer Connected, Water Connected
Vegetation: Mature Landscaping
Water: Public
Water Access Y/N: No
Windows: Aluminum Frames, Window Treatments
Zoning: RSF5

Room Sizes

Kitchen: 10x9
Dining Room: 14x8
Living Room: 18x11
Primary Bedroom: 16x11
Bedroom 2: 11x10
Bedroom 3: 14x11
Foyer: 16x4

Local Schools

High School: Lemon Bay High
Middle School: L.A. Ainger Middle
Elementary School: Vineland Elementary

Listed By / Shown By

Listed By

Agency Name: KW PEACE RIVER PARTNERS
Agency Contact: 941-875-9060

Shown By

Agent Name: Vinnie Stulic
Agent Phone:
Agency Title: Florida Executive Realty

IDX logo

Estimate Your Payment

Estimated Payment

$ 844.13 per month $523.01 Principal & Interest $252.58 Property Tax $68.54 Homeowner's Insurance

Change Payment Information

%
years/fixed
yearly
yearly (est.)
(Payments are an estimate and may vary by lender)
Disclaimer: All information deemed reliable but not guaranteed. All properties are subject to prior sale, change or withdrawal. Neither listing broker(s) or information provider(s) shall be responsible for any typographical errors, misinformation, misprints and shall be held totally harmless. Listing(s) information is provided for consumers personal, non-commercial use and may not be used for any purpose other than to identify prospective properties consumers may be interested in purchasing. Information on this site was last updated 03/19/2026. The listing information on this page last changed on 03/19/2026. The data relating to real estate for sale on this website comes in part from the Internet Data Exchange program of Delta Media Group MLS (last updated Thu 03/19/2026 1:11:03 AM EST) or Stellar MLS (last updated Thu 03/19/2026 12:58:58 AM EST). Real estate listings held by brokerage firms other than Florida Executive Realty may be marked with the Internet Data Exchange logo and detailed information about those properties will include the name of the listing broker(s) when required by the MLS. All rights reserved.

Listing data and photos distributed by MLSGRID
Member Participants (and their affiliated licensees, if applicable) shall indicate on their websites that IDX information is provided exclusively for consumers’ personal non-commercial use, that it may not be used for any purpose other than to identify prospective properties consumers may be interested in purchasing, that the data is deemed reliable but is not guaranteed by MLS GRID, and that the use of the MLS GRID Data may be subject to an end user license agreement prescribed by the Member Participant’s applicable MLS if any and as amended from time to time. MLS GRID may, at its discretion, require use of other disclaimers as necessary to protect Member Participant, and/or their MLS from liability.
Based on information submitted to the MLS GRID. All data is obtained from various sources and may not have been verified by broker or MLS GRID. Supplied Open House Information is subject to change without notice. All information should be independently reviewed and verified for accuracy. Properties may or may not be listed by the office/agent presenting the information.



Privacy Policy / DMCA Notice / ADA Accessibility

Login to My Homefinder

Pixel